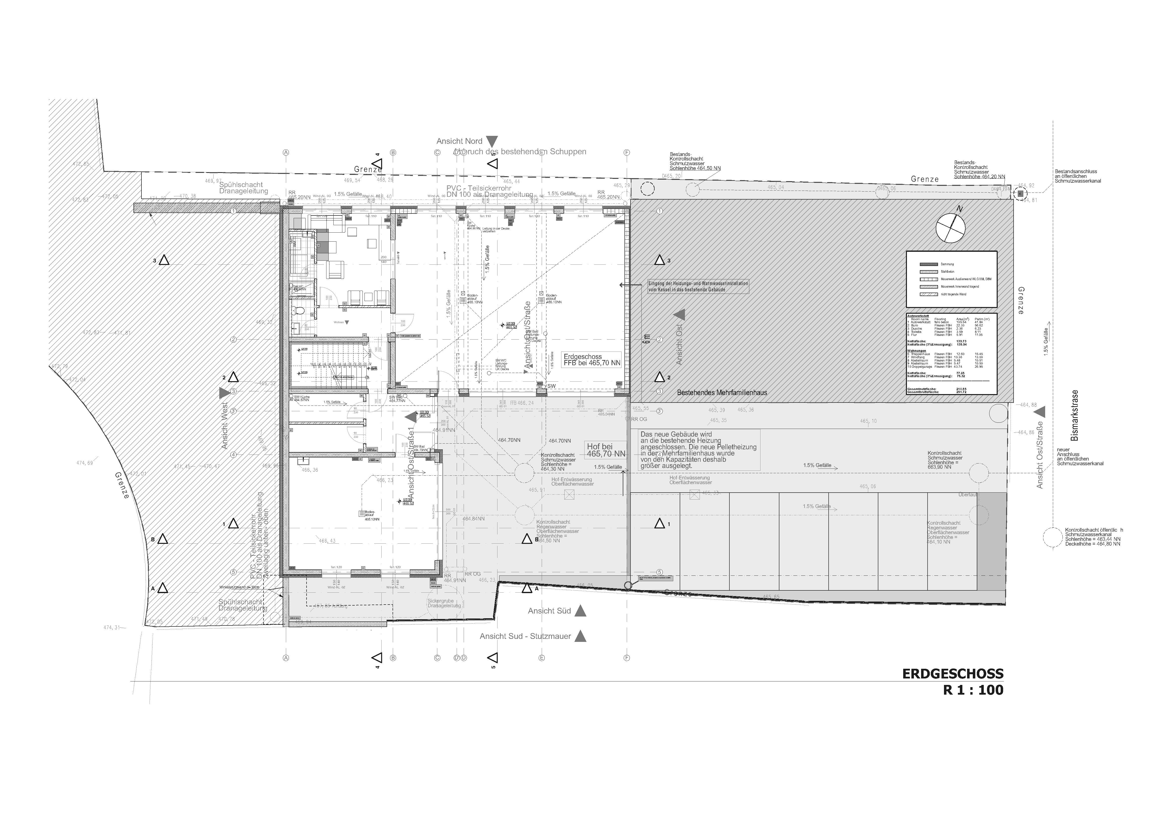
Construction site update / New construction of a car repair shop with two apartments on the upper floor / Neubau einerAutowerkstatt mitzwei Wohnungen im Obergeschoss / Geislingen / Germany June 28, 2023June 28, 2023 Construction site update, june 2023 Construction site update, 2022 Working Plans Share this: Share on X (Opens in new window) X Share on Facebook (Opens in new window) Facebook Like Loading... Related